China's proposed 'super-embassy' in London has ignited a firestorm of controversy, with security experts warning that the sprawling complex could serve as a clandestine hub for espionage operations across Europe.
At the heart of the debate are unredacted planning documents, leaked last night, which reveal a secret chamber positioned perilously close to a critical fibre-optic cable network.
This network, located in the City of London and Canary Wharf, is a lifeline for global financial transactions, transmitting vast amounts of sensitive data every second.
The proximity of the hidden room to these cables has raised alarm bells among intelligence analysts, who argue that the structure could be exploited to intercept communications with alarming ease.
Professor Anthony Glees, a renowned expert in intelligence and security at the University of Buckingham, has called the proposal 'absolutely mad.' In an interview with LBC's Nick Ferrari, he highlighted the alarming proximity of the chamber to the cables, stating, 'You can see from the plans how close rooms run to those cables – they can be tapped very easily.' His concerns extend beyond the UK's borders, as he warned that the embassy could become a nerve centre for Chinese intelligence operations across Europe. 'There are also heating systems suitable for large servers,' he added, implying that the facility could house the infrastructure needed to process and store vast amounts of intercepted data.
The professor's warnings are compounded by the sheer scale of the embassy complex, which he argues could be used to intimidate and detain critics.
His remarks echo a 2022 incident in Manchester, where a Hong Kong democracy protester was dragged into the Chinese consulate and assaulted.
This incident has fueled concerns that the new embassy could become a site for similar acts of intimidation, particularly against dissidents and critics of the Chinese government.
The timing of these revelations coincides with a letter from a group of Labour MPs urging Sir Keir Starmer to reject the plans, which could be approved as early as this week.
The MPs, including Sarah Champion – a member of the Joint Committee on the National Security Strategy – have raised significant concerns about the proposal.
They cite China's recent history of espionage, interference activities, and bounties offered against UK-based Hong Kongers.

The letter to Communities Secretary Steve Reed emphasizes the risks posed by the embassy's location above critical infrastructure, which is vital to both the UK's economic and national security.
The MPs argue that these concerns remain 'significant and unresolved,' and they are urging the government to take a firm stance against the development.
Despite these warnings, Downing Street has insisted that national security issues linked to the planning application have been 'considered and addressed.' The Prime Minister's official spokesman stated that the decision would be made by the Secretary of State for Housing, Communities and Local Government, emphasizing that the process is 'quasi-judicial' and independent.
While the government has not provided specific details on how security concerns were mitigated, it has reiterated that national security remains a top priority.
The spokesman confirmed that a decision is expected by 20 January, though no further details were disclosed.
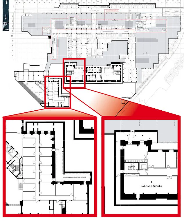
The secret chamber, as depicted in the leaked plans, is triangular in shape and measures up to 40 metres across, with a depth of 2-3 metres.
Its location in the north-west corner of the building, adjacent to the critical cable network, has sparked intense scrutiny.
Critics argue that the design of the room – potentially equipped with advanced server infrastructure – could facilitate covert surveillance operations.
The revelation has reignited debates about the balance between diplomatic relations and national security, with many questioning whether the UK is prepared to host such a facility in a strategically sensitive area.
As the planning process moves forward, the eyes of the world are on the UK government.
The coming weeks will determine whether the super-embassy is allowed to proceed, or if the concerns raised by security experts and MPs will force a reconsideration of the project.

For now, the unredacted documents and the warnings they have triggered remain at the forefront of the debate, casting a long shadow over the future of the UK-China relationship.
Beneath the surface of Beijing's 'super-embassy,' a sprawling network of 208 secret rooms is hidden in plain sight, according to reports from The Telegraph.
These chambers, many of which remain concealed in planning documents, are said to include advanced air extraction systems—features that strongly suggest the presence of heat-generating equipment such as high-performance computers.
This revelation has sparked intense scrutiny, with critics questioning the true purpose of these subterranean spaces and whether they might serve functions beyond diplomatic operations.
The implications of such a facility, situated in close proximity to critical infrastructure, have ignited a firestorm of debate among security experts, politicians, and the public.
The proposed embassy, which China aims to construct on the former site of the Royal Mint in London, has become a lightning rod for controversy.
The UK government faces mounting pressure from MPs across the political spectrum to reject the application, citing deep concerns over national security.
The site, currently under consideration for approval by Prime Minister Sir Keir Starmer, is strategically located near the heart of the City of London—a financial hub teeming with sensitive data and communications networks.
Critics argue that the location itself is a red flag, given the proximity to underground cables and data centers that facilitate global financial transactions and intelligence flows.
At the center of the controversy lies the potential for espionage.
Security experts have raised alarms that the embassy's design could facilitate unauthorized surveillance.

Professor Alan Woodward, a renowned cybersecurity expert, warned that the proximity of the new building to existing communication cables would create an 'enormous temptation' for China to intercept data.
This concern is compounded by the fact that the outer walls of the subterranean chambers—directly adjacent to these critical cables—are slated for demolition and reconstruction.
Such a move, critics argue, could provide China with the opportunity to tap into the cables, potentially compromising the UK's most sensitive communications.
The planning documents, which have been partially redacted, further fuel speculation.
The Mail on Sunday revealed details of 'spy dungeons'—two suites of basement rooms and a tunnel, with their purposes obscured for security reasons.
Diplomatic sources have also indicated that the embassy could house an on-site 'spy campus,' accommodating over 200 intelligence officers.
These revelations have intensified fears that the facility might function as a covert hub for surveillance and intelligence-gathering operations, raising questions about the true nature of China's diplomatic presence in the UK.
The controversy is not new.
Since 2018, when China acquired the 215,280 sq ft site for £255 million from the Crown Estate, security concerns have loomed large.
The location's proximity to the Square Mile—a financial and communications nexus—has long been a point of contention.
The cables along Mansell Street, which connect major financial institutions and data centers, are particularly vulnerable.

Companies such as BT, Colt Technologies, and Verizon rely on these lines to transmit data between the City of London and Canary Wharf, as well as to key financial hubs globally.
The potential for these lines to be compromised has led to calls for a complete reassessment of the project.
Beyond security fears, the embassy has also drawn criticism from those who have fled China's authoritarian regime.
Hong Kong residents and other dissidents have expressed concern that the facility could serve as a base for tracking and targeting individuals who have sought refuge in the UK.
The unredacted planning documents, which reveal the existence of anonymous basement rooms and tunnels, have only deepened these anxieties.
Critics argue that the secrecy surrounding the embassy's design is itself a warning sign, suggesting that its true purpose may extend far beyond diplomatic functions.
China has consistently denied allegations that the embassy could be used for espionage, dismissing such claims as baseless.
Meanwhile, BT has reiterated its confidence in the robustness of its security measures, stating that it collaborates closely with the UK government to protect its infrastructure.
However, these assurances have done little to quell the concerns of security experts and lawmakers.
Shadow justice secretary Robert Jenrick has called the unredacted plans 'shocking,' stating that no one committed to national security could endorse such a project.
As the UK government weighs its decision, the debate over the embassy's future continues to intensify, with the stakes higher than ever.